THIZY-LES-BOURGS (69240) Maison de Bourgs 4 pièces, 98 m²
THIZY-LES-BOURGS (69)
Départ des offres(1):
65 000 €
Paliers: 1 000 €
Réception des offres
Début de la vente interactive:
17/01/2026 12:00
Fin de la vente interactive:
18/01/2026 12:00
Présentation
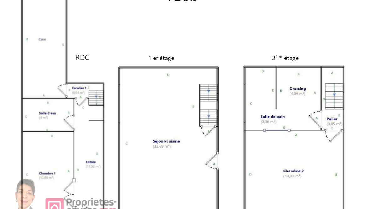
Karine GARAYT vous propose en exclusivité cette maison de bourg pleine de charme, située au coeur du centre historique de Thizy-Les-Bourgs. Répartie sur trois niveaux, elle dispose d'une entrée en rez-de-rue avec une pièce polyvalente (bureau, chambre ou salon), une salle d'eau, un WC et une cave voûtée.
Au premier étage, accessible également par une entrée indépendante, se trouve une spacieuse pièce de vie avec cuisine ouverte.
Le dernier niveau accueille une vaste suite parentale comprenant une chambre, un grand dressing et une salle de bain entièrement rénovés par des professionnels.
Ce bien offre de belles possibilités : idéal pour une résidence principale, un premier achat ou un investissement locatif. Le rez-de-rue peut aisément être aménagé en studio indépendant, permettant d'optimiser le rendement locatif.
Situation recherchée, en centre-bourg, à proximité des commerces et écoles, à 10 minutes de la gare d'Amplepuis et du lac des Sapins (69550) et à 1h15 de Lyon.
Chaudière au gaz de ville et isolation récentes, menuiseries double vitrage. Quelques finition restent à faire au premier niveau.
Ses atouts : charme de l'ancien, rénovation de qualité, double accès, potentiel locatif, emplacement central.
Ce bien bénéficie de la garantie 12 mois PROTEC +
DPE: Classe C - GES C - Prix moyen des énergies indexées sur les années 2021, 2022, 2023 (abonnement compris) : entre 1100€ et 1540€.
Visites sur rendez-vous uniquement. Les offres seront reçues à la manière d'un appel d'offres.
Réception des offres dès la visite directement auprès de Karine GARAYT (l'acceptation d'une offre par le vendeur mettra fin à la vente interactive pour les autres acquéreurs), ou sur le site www.mizapri.com du samedi 17/01/2026 à 12h00 au dimanche 18/01/2026 à 12h00. Date limite de réception des offres libres : vendredi 16/01/2026 à 12h00.
Une visite préalable du bien est obligatoire.
DÉPART DES OFFRES : 65 000 euros (1). Honoraires à la charge du vendeur.
(1) Mention "départ des offres" : prix auquel les offres peuvent commencer. Une fois la vente interactive terminée, les offres seront soumises à acceptation du vendeur.
Pour visiter et vous accompagner dans votre projet, contactez Karine GARAYT, au 0672743646 ou, par courriel à k.garayt@proprietes-privees.com.
Selon l'article L.561.5 du Code Monétaire et Financier, pour l'organisation de la visite, la présentation d'une pièce d'identité vous sera demandée.
Cette présente annonce a été rédigée sous la responsabilité éditoriale de Karine GARAYT agissant sous le statut d'agent commercial immatriculé au RSAC roanne 819 403 817 auprès de SAS PROPRIETES PRIVEES, au capital de 44 920€, ZAC LE CHÊNE FERRÉ - 44 ALLÉE DES CINQ CONTINENTS 44120 VERTOU; SIRET 487 624 777 00040, RCS Nantes. Carte Professionnelle Transactions sur immeubles et fonds de commerce (T) et Gestion immobilière (G) n°CPI 4401 2016 000 010 388 délivrée par la CCI Nantes - Saint Nazaire. Compte séquestre n°30932508467 BPA SAINT-SEBASTIEN-SUR-LOIRE (44230). Garantie GALIAN-SMABTP - 89 rue de la Boétie, 75008 Paris - n°28137 J pour 2 000 000€ pour T et 120 000€ pour G. Assurance responsabilité civile professionnelle par GALIAN-SMABTP n° de police 28137.J
Mandat réf : 428581 - Le professionnel conseille et sécurise votre projet immobilier.
(1)Mention "départ des offres" : Prix auquel les offres peuvent commencer. Une fois les ventes interactives terminées, les offres seront soumises à acceptation du/des vendeur(s).
Visites
- Le 05/12/2025 de 10:00 à 17:00
- Le 06/12/2025 de 10:00 à 17:00
Descriptif
Type : Maison
Neuf / Ancien : Ancien
Surface habitable : 98,00 m²
Surface terrain : 70,00 m²
Surface séjour : 34,00 m²
Nombre de pièces : 4
Nombre de chambres : 2
Nombre de salles de bain : 1
Nombre de salles d'eau : 1
Nombre de toilettes : 2
Niveaux : 2
+ de détails
Exposition : Nord Est
Nature chauffage : Individuel
Chauffage : Au gaz
Année de construction : 1890
Etat général : Bon état général
Aux alentours : Supermarché, École, Parc, Bibliothèque
Performance énergétique :
Équipements
Cuisine équipée
Cave
Chauffage
Connexion internet
Escaliers
Les documents
Il faut se connecter pour pouvoir télecharger les documents.
Certains documents nécessitent une demande d'accès à la vente interactive validée par l'agence .
Participer à la vente interactive 
Titre de propriété