Maison bourgeoise 210 m² avec 4 chambres, jardin et vue
THIZY-LES-BOURGS (69)
Départ des offres(1):
195 000 €
Paliers: 1 500 €
Réception des offres
Début de la vente interactive:
13/12/2025 12:00
Fin de la vente interactive:
14/12/2025 12:00
Présentation
Elégante maison de la fin du XIXe siècle alliant authenticité, confort et belles perspectives d'aménagement.
Située dans un quartier résidentiel paisible, à seulement 1h de Lyon et à deux pas des commerces, écoles et services, elle conviendra aussi bien pour une résidence familiale que comme maison de campagne.
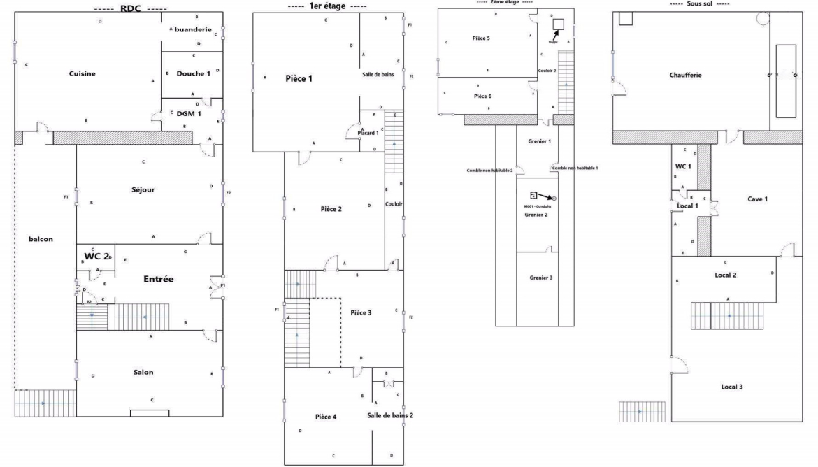
Avec environ 210 m² habitables, elle s'articule autour d'une majestueuse entrée cathédrale et offre : Un salon lumineux , une salle à manger généreuse, une vaste cuisine indépendante, quatre grandes chambres, dont deux avec salle de bains privative, une salle d'eau supplémentaire, un grenier déjà aménagé, proposant un espace polyvalent avec point d'eau.
Le sous-sol complet d'environ 90 m² constitue un véritable atout : caves, ateliers et rangements pour répondre à tous vos besoins.
À l'extérieur, vous profiterez d'un terrain arboré de près de 1 000 m², agrémenté d'un jardin paysager et d'une vue dégagée.
Points techniques à noter : Chauffage central au gaz, menuiseries mixte simple et double vitrage, toiture en bon état,
Bâti sain nécessitant des travaux de rafraîchissement pour sublimer son charme.
Idéalement située à 10 minutes du Lac des Sapins (Cublize) et de la gare d'Amplepuis (liaison directe pour Lyon), cette demeure séduira les amateurs de belles demeures à la recherche d'un cadre de vie serein sans renoncer aux commodités.
Vidéo de présentation disponible sur demande
DPE: Classe E - GES E - Montant moyen estimé des dépenses annuelles d'énergie pour un usage standard établi à partir des prix de l'énergie de l'année 2021 : entre 3630€ et 4960€.
Pour visiter et vous accompagner dans votre projet, contactez Karine GARAYT, au 0672743646 ou par courriel à k.garayt@proprietes-privees.com
Selon l'article L.561.5 du Code Monétaire et Financier, pour l'organisation de la visite, la présentation d'une pièce d'identité vous sera demandée.
Visites sur rendez-vous uniquement. Les offres seront reçues à la manière d'un appel d'offres.
Réception des offres dès la visite directement auprès de Karine GARAYT (l'acceptation d'une offre par le vendeur mettra fin à la vente interactive pour les autres acquéreurs), ou sur le site www.mizapri.com du samedi 11/10/2025 12h00 à dimanche 11/10/2025 12h00. Date limite de réception des offres libres : vendredi 10/10/2025 à 12h00.
Une visite préalable du bien est obligatoire.
DÉPART DES OFFRES : 195 000 euros (1). Honoraires à la charge du vendeur.
(1) Mention "départ des offres" : prix auquel les offres peuvent commencer. Une fois la vente interactive terminée, les offres seront soumises à acceptation du vendeur.
Cette présente annonce a été rédigée sous la responsabilité éditoriale de Karine GARAYT agissant sous le statut d'agent commercial immatriculé au RSAC Roanne 819 403 817 auprès de la SAS PROPRIETES PRIVEES, au capital de 40 000 €, ZAC LE CHÊNE FERRÉ - 44 ALLÉE DES CINQ CONTINENTS 44120 VERTOU; SIRET 487 624 777 00040, RCS Nantes. Carte professionnelle Transactions sur immeubles et fonds de commerce (T) et Gestion immobilière (G) n° CPI 4401 2016 000 010 388 délivrée par la CCI Nantes - Saint Nazaire. Compte séquestre n°30932508467 BPA SAINT-SEBASTIEN-SUR-LOIRE (44230) ; Garantie GALIAN - 89 rue de la Boétie, 75008 Paris - n°28137 J pour 2 000 000€ pour T et 120 000€ pour G. Assurance responsabilité civile professionnelle par MMA Entreprise n° de police 120.137.405
Mandat d'appel d'offres réf : 418940 - Le professionnel conseille et sécurise votre projet immobilier.
(1)Mention "départ des offres" : Prix auquel les offres peuvent commencer. Une fois les ventes interactives terminées, les offres seront soumises à acceptation du/des vendeur(s).
Visites
Descriptif
Type : Maison
Neuf / Ancien : Ancien
Surface habitable : 212,00 m²
Surface terrain : 1 051,00 m²
Surface séjour : 23,00 m²
Nombre de pièces : 8
Nombre de chambres : 4
Nombre de salles de bain : 3
Nombre de salles d'eau : 3
Nombre de toilettes : 3
Niveaux : 3
+ de détails
Exposition : Sud Ouest
Nature chauffage : Individuel
Chauffage : Au gaz
Année de construction : 1880
Etat général : À rénover
Aux alentours : Supermarché, École, Parc, Bibliothèque
Performance énergétique :
Équipements
Jardin
Terrasse
Cave
Chauffage
Connexion internet
Cheminée
Escaliers
Les documents
Il faut se connecter pour pouvoir télecharger les documents.
Certains documents nécessitent une demande d'accès à la vente interactive validée par l'agence .
Participer à la vente interactive 
Titre de propriété